

STUDIO KREMLIN
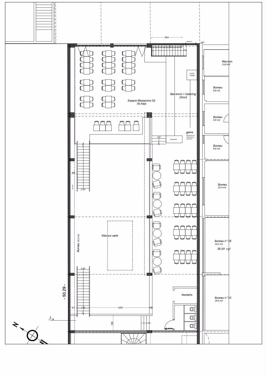
Le Studio Kremlin abrite de nombreux studios de cinéma et accueille les métiers de l’audiovisuel. À Ivry, Tomorrow Food créé un foodcourt sur plus de 600 m2 pour accueillir les travailleurs comme les locaux & devenir le lieu de vie de la localité avec une offre diverse & évenenementielle.
adresse
IVRY SUR SEINE
client
partenaires
STUDIO KREMLIN
typologie
Food & Leisure Market
informationS
1500
M2
350
places
12/2025
Ouverture
MODELe ÉCONOMIQUE
Aménagement
Expérience client
Galerie photos
À découvrir aussi
Merci ! Nous avons bien reçu votre message.
Quelque chose s'est mal passé ...




.avif)
.avif)
.avif)
.avif)
.avif)
.avif)
.avif)
.avif)
.avif)
.avif)